单边力矩支臂尺寸
电动机连接架尺寸
法兰安装螺钉尺寸
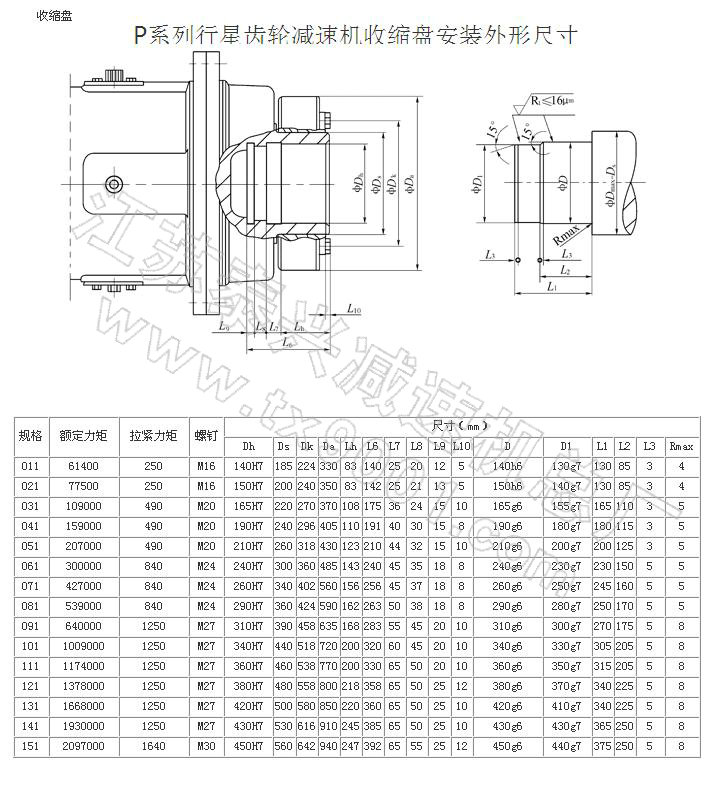
收缩盘尺寸
输出边的径向载荷
双边力矩支臂尺寸
转矩分级
精确传动比